Acheter un appartement 2 pièces
de 40 m² à Nantes (44100)
226 500 € FAI
Réf. EG3902-1
C'est au coeur de Nantes, boulevard de la Fraternité, que s'implante cette nouvelle résidence de 12 logements, à deux pas de la place Zola, son marché et ses commodités et à quelques minutes à pied du parc de Procé et de la coulée de la Chézine.
Prix: 226 500 euros TTC (+ Frais de notaire réduits à 2.5% environ)
(Prix direct promoteur, pas de frais d'agence pour nos clients acquéreurs)
Autres Lots disponibles.
Renseignements auprès de L'Adresse NANTES CALVAIRE by 4IMMO, votre agence à NANTES pour trouver votre solution immobilière en Résidence principale ou secondaire, Défiscalisation, Pinel, LMNP, Location, Gestion immobilière.
Les informations sur les risques auxquels ce bien est exposé sont disponibles sur le site Géorisques : www.georisques.gouv.fr.
L'ADRESSE 4immo Nantes - c'est 4 métiers : Gestion locative, Location, Syndic de Copropriété, Vente et 4 agences : Talensac/Calvaire/Schuman/St Félix
Retrouvez nous sur www.4immo.fr
Copropriété de 22 lots - dont 12 lots habitation.(Pas de procédure en cours).
Informations complémentaires
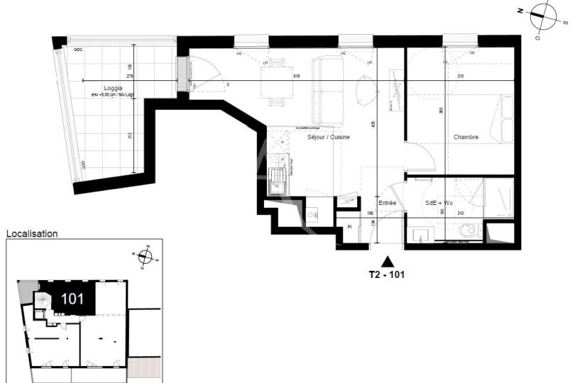
- Type : Appartement T2
- Nombre de chambres : 1
- Étage : 1
- Nombre de pieces : 2
- Année : 2024
- Surface habitable : 40
- Salle(s) de bain : 1
- Stationnement : -
- Chauffage : -
- Référence : EG3902-1
Surfaces approximatives non vérifiées.
Dépenses énergétiques
